這是一個馬德里舊屠宰場改建項目其中一部分,屬于政府推廣的文化項目。
最初建于1907年,目前打算建成一個全新的前衛文化中心,其中的20多個倉庫都將得到改建。
其中一個倉庫改建項目Warehouse 8B在6月7日已經報道,點擊
HERE進行查看。
本案17C是一個既考慮項目藝術性同時又考慮倉庫未來租戶的方案,在改建過程中,以激進但是又內斂的態度,將干預減少至最低。坦然,自信,在介入與不介入之間掌握了平衡。讓新舊互為共生而不是簡單的組合在一起,雙方因為對方的存在而使得價值得到了提升。墻上的斑駁,外露的排水管都得到了保留。以其達到以新興展望過去,反之亦然。
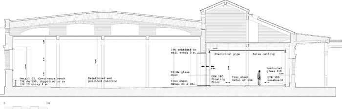
地板,門窗,踏步,玻璃處理得簡單直白,建立了新與舊的開誠溝通,并讓雙方的表現力得到最大化展示。
[page]
Location:
C/ PASEO DE LA CHOPERA, 14. NAVE 17 C. ANTIGUO MATADERO LEGAZPI. 28045 MADRID.
Preparation of the project and completion of construction schedule:
January 2006_December 2006.
Project’s authorship:
Arturo Franco. (architect)
Fabrice van Teslaar. (architect)
Project’s collaborator
Diego Castellanos. (interior architect)
Site Supervisor and Quantity Surveyor:
Jose H. Largo Díaz.
Javier Muñoz.
Period for completion:
Five months
Work budget:
700,000 €.
Furnishing budget:
Not contracted except locksmith’s work designed by the office and included in global budget.
Intervention area:
6.000 m2
Developer/Owner
ARTS COUNCIL OF MADRID CITY COUNCIL
Construction Company:
Exisa.s.a.
Photographer/s:
Carlos Fernandez Piñar.Intermediae_Matadero
[page]

The project was born in the scope of the Old Slaughterhouse of Madrid and belongs to a cultural
program promoted by the City Council. A complex of more than twenty warehouses constructed
by the architect Luis Bellido circa 1907, that now intends to become a new avant-garde cultural
centre where different institutions have assumed the management and refurbishment of some
warehouses. ARCO Foundation, Ruipérez Foundation, the Teatro Español, the Designers
Society, COAM Foundation and Madrid City Council will be the first ones occupying this space.
First of all, the warehouse 17c has been assigned to Intermediae, a new institution created by the
Madrid City Council to promote contemporary creation through a program of scholarships and
initiatives linking artistic production and citizen participation. All of this is intended as a steady
process of production, where precisely the process will become the common thread of this space.
The warehouse 17c has been the first intervention made in the Matadero complex and, as such,
could be considered as a pilot trial. The project was born with two well-defined clients. On the one
hand, the Council itself by means of its Arts City Council and on the other hand, by means of
Intermediae and its programmatic constraints as the warehouse’s future tenant.
When addressing the project, Intermediae philosophy was the first condition and, as Pedro Aullón
says, the concept of process is still alive.
[page]

“The process...
Process is an idea related to relationship and change dynamics and implies, in our perspective, a
vivacious sense of experience. Being considered like this, the process doesn’t opt for the
analysis or synthesis preponderance but naturally coexists among them, installed on a base that
is intuition, foremost, and the open sky of an imagination that cannot be separated from
understanding. The process as a needful becoming, not in a theoretical or practical sense but
as reality that goes beyond this distinction, is inseparable from an idea of reflection on becoming
as well as on the idea of becoming itself, because it is possible to consider that all becoming is
mixed up in the same march of events. It’s the procession of processions, the absoluteness. If
certain thought in the first half of the Twentieth Century insisted on a process of physical as well
as metaphysical argument by a path able to transcend the philosophical tradition of substance, at
the same time it’s true that it is possible to find a non-contradictory tradition with substance that,
by means of a non-restrictive exegesis, highlights the requirement of motion and novelty, action
and processualism, functional capacity and duration. This is not alien to an assessment criterium
but it enriches it. It is continuity, discontinuity and the process continuity, alive reality.
Pedro Aullón”
[page]

From the very beginning, we assumed the intervention as an opportunity to explore the
possibilities of refurbishment. The point was to contribute with a new attitude in face of the public
realm of historical patrimony, a radical posture, an experience about limits, the limits of non–
intervention, reducing such intervention to a bare minimum.
In this project, the traditional insecurity and theoretical vagueness that persistently affects actual
interventions on patrimonial legacy with results halfway in-between what to do and what not to do,
disappeared from the very beginning. We decided to choose an idea and to explore it to the very
end, without fears, with no inferiority complexes. We decided to intervene in a radical manner
without intervening, taking the idea to the ultimate consequences.
This crude standpoint before refurbishment and the necessity to serve Intermediae like a rising
institution in constant evolution, so the natural ambiguities from a bicephalous client, had forged
the natural hardness of the project.
We made no concessions concerning refurbishment, respecting the ruin, boosting its values with
minimum intervention. A constant dialog has been established between the new and the old,
without mixing them up, together but not blended. These two languages look close to each other.
The new boosts the value of the old and vice versa. Two viewpoints face to face, both revealed
with maximum rawness. In a voluntary manner, we chose to preserve the cuts on the walls, the
same kind of cuts a radial saw does. Exposed, PVC drain pipes are more interesting. With the
withdrawal of revoke, marks made by the backhoe originate unexpected textures. Here, cork
isolations appear like a witness of its cooling history, with no inferiority complexes. Thus, the past
reveals itself, the work reveals itself. Any witness of the process remains intact. The powder blue
of levels, the retrieval and consolidation of columns, signs, wrinkles, wounds still open, like the
existence of an old man with no oddities, where its immoderate personality seems to be beyond
anything.
Against this, what is new: very few, very hard, very clean and very upright. The novelty appears
with determination, sometimes very heavy, very confident; sometimes very clear, very fragile.
Youthfulness looking to the past and vice versa.
Its condition of transformable space led us to consider its reutilisation, its relocation, its constant
manipulation and in its high wear resistance. For this, we have used materials coming directly
from industrialization, with no transformation at all, using standard dimensions. Thus, de-
contextualised steel profiles, with no treatment, become benches, bars, raised floors,
baseboards, doors, glass stops, etc. Also, glass mounted the easiest way with its maximum
dimensions and uncut can be reutilised. A world of industrial materials loaded with heaviness,
able to establish an open communication with the old, the ancient, reaching the both its maximum
expressiveness.
[page]
[page]
[page]
[page]
[page]
[page]
[page]