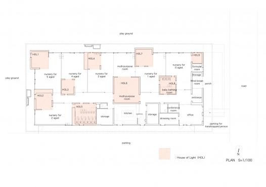
這是一個為零歲到五歲孩子們設計的幼兒園,它位于日本長濱市郊區,學校是一個單層的結構,空間之間,空間和室外景觀之間都有很大的透明性,另外光井被放置在了幼兒園的最主要位置。這里所說的光井是圓錐形的不同大小的屋頂結構,它們還有不同的顏色,朝向不同的方向,從而將光線吸入室內空間,同時這些光線還會隨著時間和季節發生變化。這些像煙囪般的光井從遠處看別具一格,它們的陰影投在毫無變化的郊區環境中,為其增添了更多特點。





? 凡注明“石材體驗網”的所有文字、圖片、音視頻、美術設計和程序等作品,版權均屬石材體驗網所有。未經本網授權,不得進行一切形式的下載、轉載或建立鏡像。
? 您若對該稿件內容有任何疑問或質疑,請即與體驗網聯系,本網將迅速給您回應并做處理。
點擊右側【在線咨詢】或至電0769-85540808 處理時間:9:00—17:00
石材體驗網部份作品均是用戶自行上傳分享并擁有版權或使用權,僅供網友學習交流,未經上傳用戶書面授權,請勿作他用。