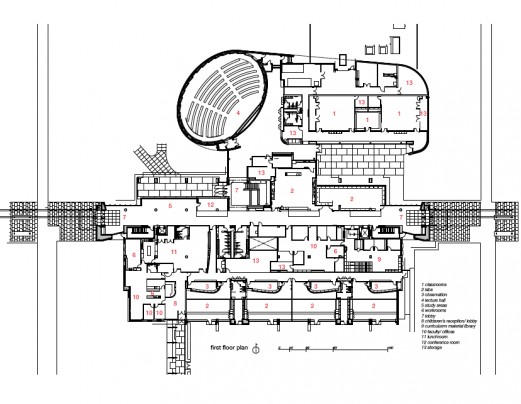
中密歇根大學教育與公共事業學院慢慢發展為美國國內知名的博士研究性機構。學院不斷擴大,需要新建建筑,以提高運行能力,滿足學生們,老師們,及職工們的各種需求。設計包含最新的研究空間,教室,實驗室和一個兒童發展中心,另有職工,老師及院系辦公室。最后設計在新舊教學設施之間創造和諧的關系,同時為學院帶來更加現代的氣息。





? 凡注明“石材體驗網”的所有文字、圖片、音視頻、美術設計和程序等作品,版權均屬石材體驗網所有。未經本網授權,不得進行一切形式的下載、轉載或建立鏡像。
? 您若對該稿件內容有任何疑問或質疑,請即與體驗網聯系,本網將迅速給您回應并做處理。
點擊右側【在線咨詢】或至電0769-85540808 處理時間:9:00—17:00
石材體驗網部份作品均是用戶自行上傳分享并擁有版權或使用權,僅供網友學習交流,未經上傳用戶書面授權,請勿作他用。