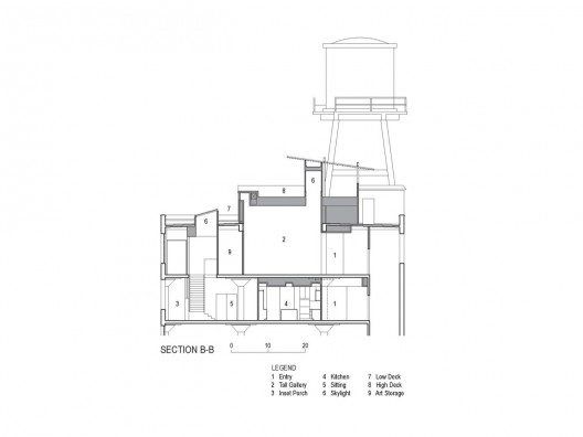
這是為一個藝術收藏家設計的住宅,閣樓占據一個20年代老工廠建筑的最高兩層及屋頂。新舊結構都呈現出干凈的白色,以突出已有結構及木框架混凝土與新墻壁、光滑環氧樹脂地板及噴漆櫥柜之間的背景反差。





? 凡注明“石材體驗網”的所有文字、圖片、音視頻、美術設計和程序等作品,版權均屬石材體驗網所有。未經本網授權,不得進行一切形式的下載、轉載或建立鏡像。
? 您若對該稿件內容有任何疑問或質疑,請即與體驗網聯系,本網將迅速給您回應并做處理。
點擊右側【在線咨詢】或至電0769-85540808 處理時間:9:00—17:00
石材體驗網部份作品均是用戶自行上傳分享并擁有版權或使用權,僅供網友學習交流,未經上傳用戶書面授權,請勿作他用。