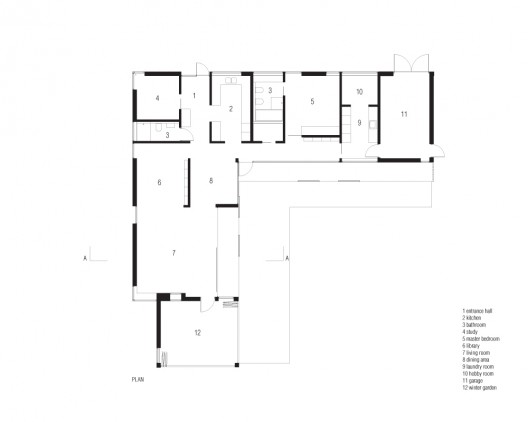
Malmö南面的Höllviken原先是一個海邊度假勝地,但是一排一排的夏季住宅慢慢都演變為了永久性的住宅。這里是一個相對復雜的角落空地,北側和西側分布公路。客戶是一對中年夫婦,孩子們現在都不在身邊。他們想要一個現代自然的單層住宅,住宅要有感性的質量。建筑圍繞著一個內部的花園展開,采用六七十年代丹麥傳統的中庭形式。三個小小的臥室聚集在北翼,西翼則是連續的空間,包含廚房,餐廳,圖書室,起居室和冬季花園。





? 凡注明“石材體驗網”的所有文字、圖片、音視頻、美術設計和程序等作品,版權均屬石材體驗網所有。未經本網授權,不得進行一切形式的下載、轉載或建立鏡像。
? 您若對該稿件內容有任何疑問或質疑,請即與體驗網聯系,本網將迅速給您回應并做處理。
點擊右側【在線咨詢】或至電0769-85540808 處理時間:9:00—17:00
石材體驗網部份作品均是用戶自行上傳分享并擁有版權或使用權,僅供網友學習交流,未經上傳用戶書面授權,請勿作他用。