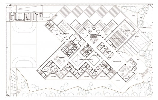
場地的城市條件是設計的基礎,并最終形成一個相對獨立的城市系統,它有著嚴格的北部朝向,同時建筑免受噪音和直接視角的影響。建筑的緊湊性通過它的多孔性,光亮感和室內的流暢感展示出來。中心的研究和學術性特征通過嚴謹的結構系統,度量和材料的精準展示出來。這個建筑為人們提供不同的服務,包括一個為二十人準備的理療區,一個研究實驗室,教室,管理辦公室和大禮堂。





? 凡注明“石材體驗網”的所有文字、圖片、音視頻、美術設計和程序等作品,版權均屬石材體驗網所有。未經本網授權,不得進行一切形式的下載、轉載或建立鏡像。
? 您若對該稿件內容有任何疑問或質疑,請即與體驗網聯系,本網將迅速給您回應并做處理。
點擊右側【在線咨詢】或至電0769-85540808 處理時間:9:00—17:00
石材體驗網部份作品均是用戶自行上傳分享并擁有版權或使用權,僅供網友學習交流,未經上傳用戶書面授權,請勿作他用。