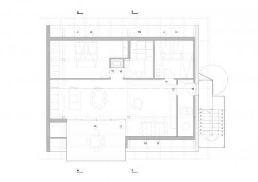
這個閣樓是很久之前的一個農倉,現在廢棄,但被建筑師改為一個私人的家庭住宅。建筑師保存了古老的建筑元素,還有煙囪,同時將其與新元素相結合。南側朝向和高高的天花板創造出輕盈開闊的空間。冬日的陽光能夠到達住宅的最深處,夏季起居室則藏在陰涼的暗處,形成自然的供熱和降溫,不需任何人工作用。起居室向著陽臺突出,使人們能有城市的景色。北側是臥室和服務區,煙囪分隔白天和夜間活動區。附加的樓梯形成入口。新的環氧樹脂地板和簡單的白色家具與百年前的松木結構形成鮮明對比。老煙囪的磚結構被保留下來,成為對過去的回憶。新樓梯由鋼鐵結構組成,臺階為落葉松,樓梯周圍被丙烯酸塑料包裹。





? 凡注明“石材體驗網”的所有文字、圖片、音視頻、美術設計和程序等作品,版權均屬石材體驗網所有。未經本網授權,不得進行一切形式的下載、轉載或建立鏡像。
? 您若對該稿件內容有任何疑問或質疑,請即與體驗網聯系,本網將迅速給您回應并做處理。
點擊右側【在線咨詢】或至電0769-85540808 處理時間:9:00—17:00
石材體驗網部份作品均是用戶自行上傳分享并擁有版權或使用權,僅供網友學習交流,未經上傳用戶書面授權,請勿作他用。