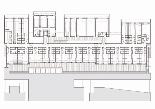
盡管2010年南非世界杯上法國隊表現欠佳,但這并沒動搖法國的體育文化、沒有沖淡法國培養足球新將的熱情。應Métropole酒店的邀請,建筑師Chartier Corbasson為國內足球新人建造了一個只屬于足球人士的集中營,以滿足球員集中管理為宗旨。建筑師在接手訓練中心項目之時因其獨特的水紋地貌,建造了一間看似廠房的2層“倉庫”,在鋼筋水泥的龍骨之下,給學員們的住宿、醫療、培訓、辦公等方面提供了可能性。





? 凡注明“石材體驗網”的所有文字、圖片、音視頻、美術設計和程序等作品,版權均屬石材體驗網所有。未經本網授權,不得進行一切形式的下載、轉載或建立鏡像。
? 您若對該稿件內容有任何疑問或質疑,請即與體驗網聯系,本網將迅速給您回應并做處理。
點擊右側【在線咨詢】或至電0769-85540808 處理時間:9:00—17:00
石材體驗網部份作品均是用戶自行上傳分享并擁有版權或使用權,僅供網友學習交流,未經上傳用戶書面授權,請勿作他用。