溫暖村落 House K 編輯:Sarah 文:王孜博 設計:高木貴間 攝影:Seiya Miyamoto We tried to see if we could design a space that would be‘indoor’(which was closed in terms of the thermal environment) but would give a feeling of being‘outdoors’as a backdrop within the building.
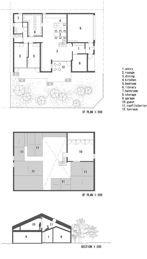
日本的北海道地區位于日本列島的最北部,以冬季寒冷著稱,在這樣氣候條件下的建筑設計作品,往往要考慮到更好的室內保溫性通常不采用內部開放式的設計方案,來自于日本的設計師高木貴間將通過House K獨樹一幟的設計詮釋了自己對于家鄉建筑的獨到見解。 House K是英文House Kitchen的縮寫,這樣命名的緣由在于項目的構成——獨立的小屋以及其上的屋頂平臺和二層閣樓全都被安排在中心廚房四周,讓各個空間都能圍繞著廚房的熱度取暖。
廚房在通常意義上總能讓人感受到暖意和溫馨,特別在北海道寒冷的冬季,開放式的內部空間設計配以形似陣陣炊煙般感受的廚房讓人倍感家的溫馨,“K”也是設計師高木貴間所看重的家的定義符號。讓各個生活區間全都圍繞在廚房周圍,這樣的空間布局也能更好地體現室內建筑的層次感,更為有效地利用室內的空間以滿足開放式設計方案的需求,讓這里真正成為一個溫暖的室內村落。 嚴寒的氣候往往決定了內部開放式的設計方案并不可行,但是為了保暖而緊縮的設計似乎又顯得憋屈,減少了居家的自在感,對于設計師而言,好的設計是讓室內如室外一般開暢,同事兼顧室內的溫暖度氛圍。通過將室內單元的外形變通,設計師巧妙地將內外空間實現了融合,讓心不再受到束縛。 
? 凡注明“石材體驗網”的所有文字、圖片、音視頻、美術設計和程序等作品,版權均屬石材體驗網所有。未經本網授權,不得進行一切形式的下載、轉載或建立鏡像。
? 您若對該稿件內容有任何疑問或質疑,請即與體驗網聯系,本網將迅速給您回應并做處理。
點擊右側【在線咨詢】或至電0769-85540808 處理時間:9:00—17:00
石材體驗網部份作品均是用戶自行上傳分享并擁有版權或使用權,僅供網友學習交流,未經上傳用戶書面授權,請勿作他用。