俄羅斯設計公司éiacute;téz Stúdió近日憑借其設計方案&mdashmdash;天空之城&mdashmdash;贏得了莫斯科A101城市街區設計大賽,以下是該方案的相關介紹。






我們身邊最主要的問題是:
人類建筑尺度的最大值應該是多少?
它應該是這樣一種尺度:當孩子們在庭院中玩耍時,房屋中的父母能聽見孩子們的笑聲;當孩子們抬頭仰望時,他們能看清窗口中父母的臉孔。因此設計師認為建筑的層數以兩至三層為宜,最多不超過四層。這樣的建筑高度將允許樹冠從屋頂伸展開去,吸引鳥兒盤旋歌唱,居民也能更接近自然。
要怎樣才能為這樣低矮的建筑提供足夠的綠地空間呢?于是設計師抬高了整個建筑底面,將全部的地面空間用于營造公園,同時建筑的綠色屋頂也增加了綠地空面積。
要怎樣將大量的居民分散至更小型的社區中去呢?設計師利用庭院做到了這一點。通過底層的庭院將社區之間聯系起來,同時也創造出大型天井般的微氣候。
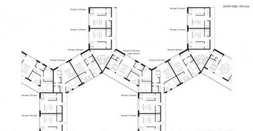
要怎樣才能使步行道平面最連貫呢?
設計師向自然的智慧構造學習:蜂巢的六邊形結構能使得道路連通度最大化,而且創造出最多的雙向平面。
設計單位:éiacute;téz Stúdió
項目地點:俄羅斯,莫斯科
使用者:當地居民
項目面積:9375㎡
總建筑面積:15000㎡
建筑樓層:底面架空層+4層
版權聲明:
? 凡注明“石材體驗網”的所有文字、圖片、音視頻、美術設計和程序等作品,版權均屬石材體驗網所有。未經本網授權,不得進行一切形式的下載、轉載或建立鏡像。
? 您若對該稿件內容有任何疑問或質疑,請即與體驗網聯系,本網將迅速給您回應并做處理。
點擊右側【在線咨詢】或至電0769-85540808 處理時間:9:00—17:00
石材體驗網部份作品均是用戶自行上傳分享并擁有版權或使用權,僅供網友學習交流,未經上傳用戶書面授權,請勿作他用。