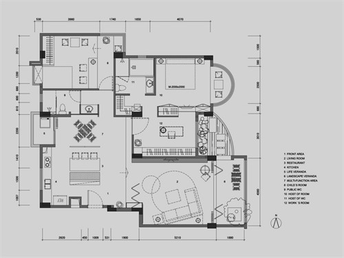
本案以長和方為基本母體的幾何體劃分各功能空間,使其各空間能享受到充足的陽光。室內空間開敞、內外通透,墻面、地面、天花一氣呵成,各空間的隔斷多采用靈活的折疊門,展現空間的靈活性與完整性,使得空間如此豐富變化。純粹的幾何形體縱橫生活之間,帶來視覺上的延展和張力;體現一種強烈的理性和象徵。
設計師:楊銘斌、李嘉輝、何曉平


[page]





? 凡注明“石材體驗網”的所有文字、圖片、音視頻、美術設計和程序等作品,版權均屬石材體驗網所有。未經本網授權,不得進行一切形式的下載、轉載或建立鏡像。
? 您若對該稿件內容有任何疑問或質疑,請即與體驗網聯系,本網將迅速給您回應并做處理。
點擊右側【在線咨詢】或至電0769-85540808 處理時間:9:00—17:00
石材體驗網部份作品均是用戶自行上傳分享并擁有版權或使用權,僅供網友學習交流,未經上傳用戶書面授權,請勿作他用。