
客廳餐廳全視圖-別墅設計作品
客廳設計作品-別墅設計作品
餐廳設計作品-別墅設計作品
廚房設計作品-別墅設計作品
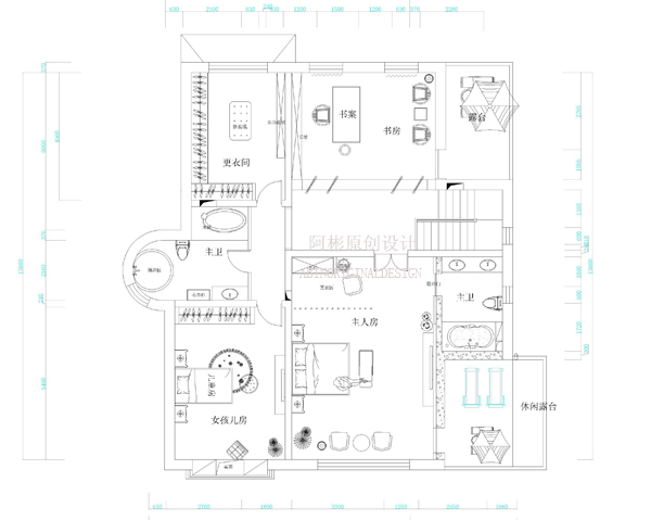
一層平面布置圖-別墅設計作品
地下酒窖酒吧休閑區設計作品-別墅設計作品
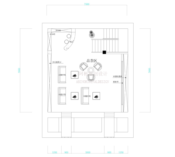
地下一層平面布置圖-別墅設計作品
書房設計作品-別墅設計作品
書房局部會客區設計作品-別墅設計作品
二層平面布置圖-別墅設計作品
案例地址:內蒙呼和浩特某別墅區
案例類型:獨棟別墅私家豪宅設計面積:390平米
風格定位:新古典中式風格
客戶基本情況及設計要求:中年某部領導,業主本人指導方向為簡約、有藝術性以中式元素為主導,體現出現代舒適的空間環境。常住一家三口,孩子為上中學的女兒,上藝術學校。外加一至兩個工人。
設計概述: 本案位于內蒙呼和浩特某別墅區,是一棟建筑面積約390平米的獨棟別墅,地下一層地上三層的私家豪宅。地下一層的面積不大,定義為休閑區域,包括酒窖吧臺和家庭影院(視聽間)。一層除了工人房外均為公共區域,會客廳和餐廳匯聚于此。
二層為主人私密區域,主臥室、女孩放及書房都被合理的安排在了這里。結合業主的各方面條件需求,主要根據空間考慮體現出一定藝術韻味!不失家的感覺,材質運用主要為暖色石材、花梨木質定制品,家具主要采用簡大氣以舒適為主,輔助配飾類家具主要采用紅木家具。業主本人的書畫作品融入個空間作為展示裝點!從而業主得到一個真正屬于自己的品味家居環境。影音室、會客廳、書房、餐廳、工人房等應有盡有。是純私人的會所級宅邸!居住于此具有無比舒適大氣! 本套設計案例是阿彬原創設計工作團隊于09年底完成,整體大氣不失品味,在古色古香的氛圍中融入了不少現代家居元素,居家待客動靜皆宜,適合熱愛中國家居文化的成功人士借鑒和參考,中式家居也是10年的主流家居潮流。
? 凡注明“石材體驗網”的所有文字、圖片、音視頻、美術設計和程序等作品,版權均屬石材體驗網所有。未經本網授權,不得進行一切形式的下載、轉載或建立鏡像。
? 您若對該稿件內容有任何疑問或質疑,請即與體驗網聯系,本網將迅速給您回應并做處理。
點擊右側【在線咨詢】或至電0769-85540808 處理時間:9:00—17:00
石材體驗網部份作品均是用戶自行上傳分享并擁有版權或使用權,僅供網友學習交流,未經上傳用戶書面授權,請勿作他用。