工程信息:
樓盤:南山區卓越維港10棟1402
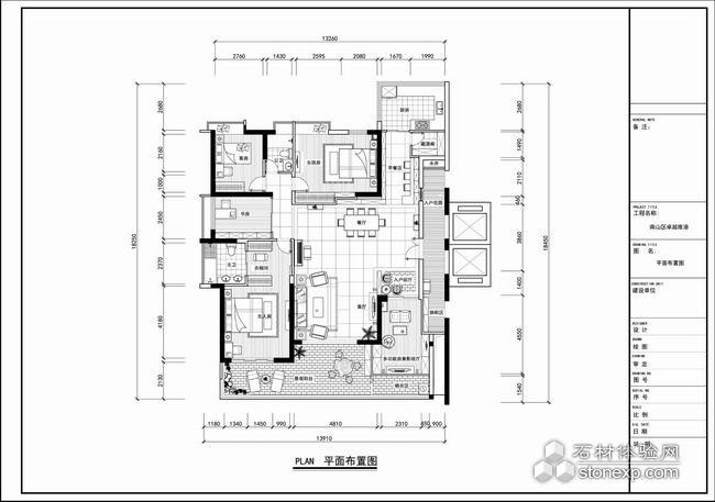
面積:220平方米
造價:主材+硬裝+軟裝----50萬元左右
卓越維港A2(鄉村混搭)設計說明:
日子總是如舊,生活卻要過得充滿新意。以人為主體的家庭演繹每個日子的精彩與創意,現代家居生活要引古于今,以懷舊手法賦予全新的審美角度。
既避免了傳統壓抑的中式特質,也摒棄了線條與夸張色彩極盡繁瑣。相反,更多的是耐人尋味的氣息,淡淡的優雅、濃濃的溫馨,精心制作的懷舊之物,為房間延伸出任意舒適的親懷與與舒適的感受,處處都有讓人留戀與懷舊的理由。
本案地處珍稀路段,兩套打通而成,合為建筑面積約220平方米,為五房兩廳一廚兩衛兼帶入戶花園及超大露臺布局。室內設計充分尊重建筑自身特點,將中西思想融合進整體空間的規劃與布層,用現代手法去處理中西方元素,打造一個充滿理性和智慧的人文家居環境。
入戶花園的設計時尚簡結,天花、地面和墻體的不同材質產生強烈的視覺碰撞,而又統一于內在的中西元素,在休閑空間自由轉換和穿插。餐廳、客廳為超大空間展開姿態,家庭使用空間功能明確有序,大膽運用墻紙、露原木紋飾面等天然本色極強的材料來傳達空間的虛與實,通透與隱約,讓人身有所領,心智愉悅與懷舊。
細節處同樣注重中西元素的表達,輕松歡愉而又蘊涵深深的韻味,享待細品。多款組合家具與獨立家具,取精致典雅實木家具之神韻,轉用時尚吧臺椅與水晶燈配合,或處以溫馨色彩的裝扮,模樣相似卻更為簡結溫馨,貼合古典懷舊的整體空間感覺。露原木紋飾面上的吉祥裝飾品,迷亂中是規則的鋪設,祥和的燈光下,是溫暖的福佑,細細品味,讓人歡喜并為之雀躍。另外,在休閑空間多用紅花綠草之類的植物,保持房間的自然氛圍。













? 凡注明“石材體驗網”的所有文字、圖片、音視頻、美術設計和程序等作品,版權均屬石材體驗網所有。未經本網授權,不得進行一切形式的下載、轉載或建立鏡像。
? 您若對該稿件內容有任何疑問或質疑,請即與體驗網聯系,本網將迅速給您回應并做處理。
點擊右側【在線咨詢】或至電0769-85540808 處理時間:9:00—17:00
石材體驗網部份作品均是用戶自行上傳分享并擁有版權或使用權,僅供網友學習交流,未經上傳用戶書面授權,請勿作他用。