自2009年夏天以來,柏林的奧托·博克醫療保健展覽中心接待了成千上萬名慕名而來的游客。這棟引人入勝的大樓是德國建筑公司格內丁格爾建筑師事務所為這家全世界最先進的醫療矯形技術公司設計并建成的。展覽中心采用了尖端的媒體裝置,向人們演示在醫療保健這個飛速發展領域的最新產品和設計。

奧托·博克公司希望在新的一年里能吸引20萬以上人次的客戶和來賓。中心開業兩個月之內就有2萬多人次的游客體驗了媒體裝置的活動與靈活性。更具有吸引力的是也設立在柏林的著名建筑設計公司——格內丁格爾建筑師事務所。建筑師在德國首都的中心,即毗鄰波茨坦廣場(Potsdamer Platz)和勃蘭登堡門(Brandenburg Gate)的一塊醒目的菱形場地上建造了這棟簡潔的建筑物。

格內丁格爾事務所的設計方法在柏林嚴格的公共設計體制下顯得頗為大膽,柏林的建筑主張采用規則的幾何形體并以石頭、玻璃為主要材料。在周圍著名事務所作品的映襯下,如理查德·羅杰斯(Richard Rogers)、赫爾穆特·雅恩(Helmut Jahn)、漢斯·科爾霍夫(Hans Kollhoff)、倫佐·皮亞諾(Renzo Piano)和gmp建筑事務所,這棟不同尋常的“動感立方體”代表了一種真正的個性。

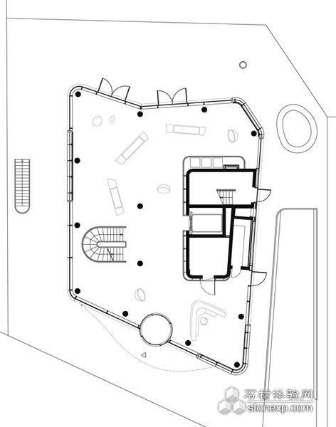
整體建筑平面設計遵從不規則的場地形狀,而且與周圍建筑都保持著適當的距離。建筑共六層,總面積1300平方米(約合3900平方英尺),既可舉辦公共展覽活動,也可進行磋商咨詢。菱形的樓層平面外側包裹著呈不規則曲線形狀的立面,由鋁和玻璃構成。

格內丁格爾事務所從人體肌肉關節中得到啟發,設計了形狀多變的抽象派白色立面鋁板。它們充滿生氣地纏繞在樓層空間外側,這些輪廓分明的鋁板線條凹凸不平、分分合合,中間鑲嵌著玻璃窗,遮住了建筑內部的精密技術產品。

前三層作為展覽空間,通過真實的互動表演和模擬向人們展示了技術上最為先進的矯形產品。其他展覽樓層設有研討和會議室,以及患者對醫生、治療專家、矯形專家進行咨詢的空間。這些制造業領域的代表性產品進一步完善了奧托·博克公司建造此項目的理念:為顧客和患者服務。

垂直交通空間和建筑設備區域等均圍繞中央核心設置。這種開放的樓面布局使各個房間的規模可大可小,并適用于多種功能。這也在所有被動態玻璃立面包裹的使用空間內確保了最大限度的日光利用。

建筑的細部處理有一處極為簡潔而又不容忽視的地方:包括所有家具和展覽物品在內的大部分表面都是白色的,與鋪著銀灰色天然石材和地毯的地面形成了對比。在某些區域,如電梯間,使用黑色硬木板給人造成一種反差極大的印象。

在建筑內部的實體核心外覆蓋著醒目的彩色印刷玻璃板,其中安裝有電視監視器,也可作為一種信息載體。它們協調自然地融入整體 “白色作品”中。
格內丁格爾事務所希望能將結合了醫療技術需求、高度發展的工業設計美學滲透到生動的整體建筑設計中。這棟富有表現力的建筑充分地展示出了奧托·博克公司的業務形象,及其在動態精度功能設計領域的專長。
















? 凡注明“石材體驗網”的所有文字、圖片、音視頻、美術設計和程序等作品,版權均屬石材體驗網所有。未經本網授權,不得進行一切形式的下載、轉載或建立鏡像。
? 您若對該稿件內容有任何疑問或質疑,請即與體驗網聯系,本網將迅速給您回應并做處理。
點擊右側【在線咨詢】或至電0769-85540808 處理時間:9:00—17:00
石材體驗網部份作品均是用戶自行上傳分享并擁有版權或使用權,僅供網友學習交流,未經上傳用戶書面授權,請勿作他用。