設計說明
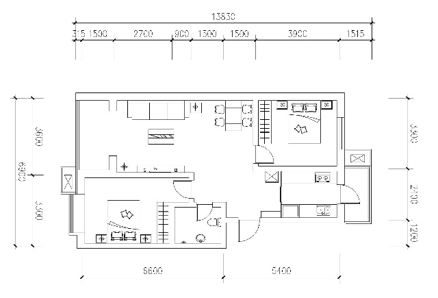
項目名稱:富燕新村E7戶型
工程面積:91.22平米
房屋類型:2室2廳1廚1衛
288套餐工程總造價:38844元
設計解析:
此方案為現代簡約風格,家具大多采用純白色,使人感覺清爽、明亮。客廳空間運用了燈光的效果,簡潔的吊頂,顯得干凈大方,電視背景墻采用石膏板與壁紙的結合,凸顯時尚感,讓人看了舒心。餐廳空間與電視背景墻相輔相成,既有變化,又有呼應,使就餐空間也變的豐富多彩。臥室的色彩傾向于明快溫馨,各個房間之間的呼應用壁紙來體現,造價既經濟,效果也更突出。


? 凡注明“石材體驗網”的所有文字、圖片、音視頻、美術設計和程序等作品,版權均屬石材體驗網所有。未經本網授權,不得進行一切形式的下載、轉載或建立鏡像。
? 您若對該稿件內容有任何疑問或質疑,請即與體驗網聯系,本網將迅速給您回應并做處理。
點擊右側【在線咨詢】或至電0769-85540808 處理時間:9:00—17:00
石材體驗網部份作品均是用戶自行上傳分享并擁有版權或使用權,僅供網友學習交流,未經上傳用戶書面授權,請勿作他用。