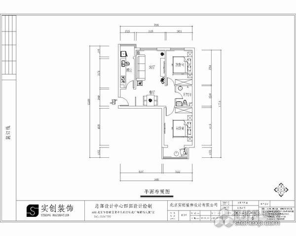
設計說明:
本設計案例為兩居室,現代風格。
具有沖擊力的過道,通透的空間結合厚重而具有現代感的餐桌及餐燈,在沉穩的基礎上又增添了一份時尚
客廳及餐廳區 黑與白之間的融入了一些暖色系中玩味線條的交錯與變化
客廳空間采光不是很理想,而且布局緊湊,沙發和裝飾品引入室內,組成空間內的功能及明亮
為了空間的沿展性沒有有刻意去交代玄關的存在簡單用線簾裝飾通透感很強,配合入口處向餐廳的造型元素來強調空間的氛圍
影視墻的凹面既滿足業主放置液晶電視的要求加以鏡面本身的屬性使得空間無形的又形成強烈的視覺感

兩居室,現代風格

具有沖擊力的過道,通透的空間結合厚重而具有現代感的餐桌及餐燈,在沉穩的基礎上又增添了一份時尚

客廳及餐廳區 黑與白之間的融入了一些暖色系中玩味線條的交錯與變化

客廳空間采光不是很理想,而且布局緊湊,沙發和裝飾品引入室內,組成空間內的功能及明亮

為了空間的沿展性沒有有刻意去交代玄關的存在簡單用線簾裝飾通透感很強,配合入口處向餐廳的造型元素來強調空間的氛圍

影視墻的凹面既滿足業主放置液晶電視的要求加以鏡面本身的屬性使得空間無形的又形成強烈的視覺感
? 凡注明“石材體驗網”的所有文字、圖片、音視頻、美術設計和程序等作品,版權均屬石材體驗網所有。未經本網授權,不得進行一切形式的下載、轉載或建立鏡像。
? 您若對該稿件內容有任何疑問或質疑,請即與體驗網聯系,本網將迅速給您回應并做處理。
點擊右側【在線咨詢】或至電0769-85540808 處理時間:9:00—17:00
石材體驗網部份作品均是用戶自行上傳分享并擁有版權或使用權,僅供網友學習交流,未經上傳用戶書面授權,請勿作他用。